top of page

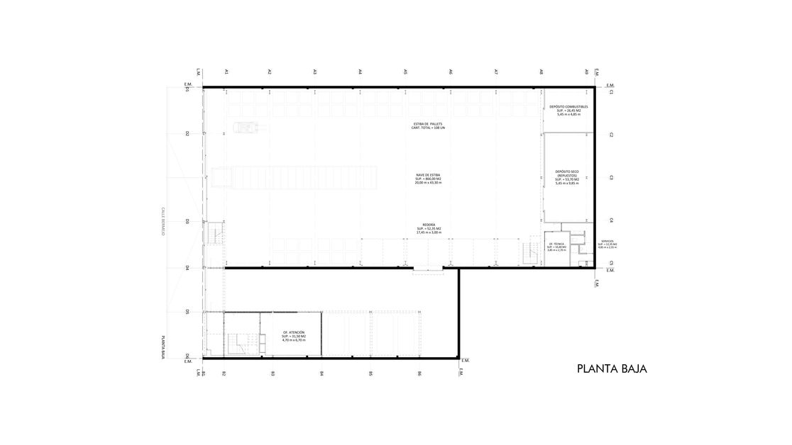
Nave industrial y oficinas - Xeitosiño S.A.

Año: 2019

Ubicación: Mar del Plata, Buenos Aires.   

Estado: Proyecto

Superficie cubierta:  1170 m2

Teléfono: 54 - (0223) 495-2000  |  Mail: efarqestudio@gmail.com  |  Dirección: Santa Fe 2777, Mar del Plata  |

  • Facebook
  • Instagram
bottom of page